Attention Fred Hamilton Park Users!
We have some wonderful news that we’ve been wanting to share with you for a really long time (but who’s counting years ;) :
THE WASHROOM BUILDING RENOVATIONS ARE STARTING MONDAY MORNING!!
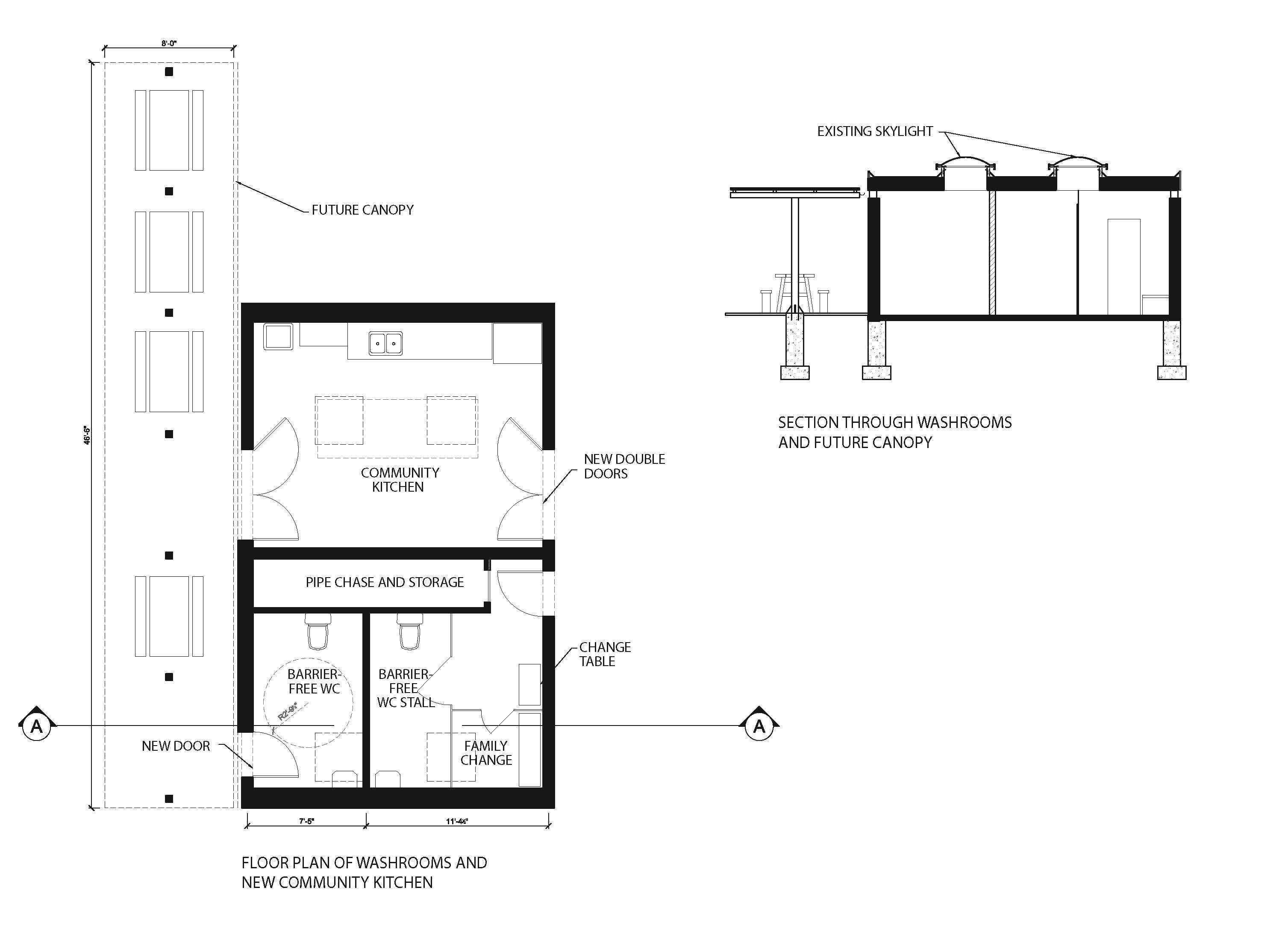
Starting Monday the building will be closed for the season and renovations to improve the washroom facilities and install a new community kitchen and meeting room will begin. If you have not had a chance to see these ideas over the past few years, please have a close look at the building.
The men’s side of the washroom will be turned into 2 barrier-free unisex washrooms and one small changing stall (for our wading pool users). The women’s side of the washroom will become a very simple kitchen facility and space for modest community gatherings.
FoRRP will soon begin dreaming up some inaugural events for our new space – ideas like “Soup Saturdays” and “Ice cream Sundays” along with children’s cooking classes or CSA (Community Supported Agriculture) drop-offs have all been discussed when the dreams for a kitchen first started.
And here we are now… we would welcome your input and encourage your participation.
A portable toilet will be on site until October 10th.
If you would like more detailed information on the building renovation, click here to view the Tender Drawings.
